Heritage advisory notes provide general guidelines to help you design new buildings and additions, including fences, gardens and colour schemes, to maintain the character and style of your property and surrounds.

Heritage garden hints

  • Successful garden design respects the traditional garden elements for the style of house and its site.
  • Before clearing the rear yard or old garden, record the location of built elements and paths, their condition and potential for retention and adaptation. Consider these in the design of the house extension and garden planning.
  • Consider the design and placement of any built structures or paving and pathways within the garden.
  • Fences are an important design element and should be taken into account in the design of the garden.

Design guidelines

gardens small cottages

The front garden

The purpose of this advisory note is to provide guidance in the restoration or development of gardens in heritage and character precincts.

The front garden was always conceived to contribute substantially to the home's appearance and make the visitor welcome. A thoughtfully restored or planned front garden, including the front fence, gates, driveway and carport will visually complement the presentation and attractiveness of the house and add value to the property.

The gardens of cottage and gabled houses did not change substantially over a long period through the late 19th and first half of the 20th century. Some of the materials, decorative elements, feature beds and plants changed over that time, but the basic layout and style remained similar even though house styles changed.

Most of the following traditional structure and elements should be incorporated into your garden restoration or adaptation.

  • Garden beds along the base of the house or front verandah. These hide the under-house battens and visually integrate the house into the garden.
  • Lawn in the centre of the front garden and along much of the house frontage. For larger gardens this serves as a way to walk into the garden space and presents the garden beds to the viewer.
  • Features located in the lawn, such as decorative garden beds or a decorative element like a fountain or statue, often as a central feature.
    Note: Planting of gardens on footpaths is subject to local laws.

gardens a red concrete path

Front fences and planting

Fences should be seen as key features of the garden, so when creating a new or altered fence, selection of the appropriate style, height and materials is important. Refer to the Toowoomba Regional Council publication, Heritage Advisory Note – Fences.

The front fence design should be relatively low and in the correct proportion to the house verandah and window height. The height and materials will influence the selection of front garden plants. For some privacy, shrubs can be allowed to grow well above the fenceline.

The modest chain mesh fence should be considered for historical cottages. The front garden's small shrubs and low feature plants can be seen through a mesh fence and the shrubs growing through visually soften the mesh.

Ideally, side frontage fences should be kept to the height of the front fence. This allows views over the fences to the adjacent owners' plants, thus visually enlarging the garden. It also contributes to the streetscape in allowing angled views on approach to the house.

Trees and palms in the front garden

The historical house front garden may accommodate a small tree. Benefits include shade, framing the house presentation and softening the view of the roof with a flowering canopy. A pair of palms either side of the entry path is a tradition suited to large houses with
spacious front gardens and make a strong visual statement.

For many historic houses in urban areas, the front garden is too small for most trees unless the tree is grown to one side and allowed to overhang the house, the neighbour's garden, or the footpath.

Entry path

It is important where possible to retain the original paths. Many early cottages still have the original entry path even if the garden has lost most of the planting.

If the path is substantially free of unevenness or major cracking, the old concrete path can be retained. The weathering or faded colour is the patina of age and appropriate for your renovated garden. If it has to be replaced, record the location, width and edging so you can carefully reconstruct it.

Concrete or brick paved paths have often replaced original gravel paths. A 1930s or 1950s front fence, younger in style than the house period, can indicate a past garden change. In such a case, the front path may be retained, as restoration to a gravel path may not suit the contemporary taste for low garden maintenance and concerns for wear and tear to internal exposed timber floors.

Merging the entry path and driveway, causing the driveway to become the front door path, should be avoided where possible.

Inappropriate materials for paths include: stamped or patterned concrete finishes; concrete unit pavers, particularly interlocking pavers; bitumen and noticeably modern brick or clay pavers. The path style and materials should relate to the house style and be selected from materials used in the region's surviving historical gardens.

Appropriate path materials include:

  • Compacted, fine granite gravel or local gravels
  • Concrete – plain or coloured: traditionally red or green
  • Bluestone or sandstone – either random flagstones or rectangular stones. Bluestone was generally used for garden and path edging. It was infrequently used for entry paths owing to its hardness and the difficulties involved in using it to form an even surface.

Narrow garden beds edging the front path display to the visitor annuals, perennials or roses, highlighting the importance of the entry path and the owner's pride in the house presentation.

gardens driveways

The driveway

A driveway of concrete tracks through grass, compacted earth, or gravel has historic authenticity and the appropriate, low-key appearance most suited to the soft timber textures and garden setting of the region's historical houses.

For a contemporary, water saving adaptation, the driveway lawn could be changed to hardy, massed low plants.

The side garden areas

Commonly for gardens in town, the spaces between the house and the side boundaries are narrow or contain the driveway. House maintenance access is usually required so gardens are often limited. 

gardens gravel path

Nevertheless, along those narrow sides, the house's heritage should be respected through appropriate garden design and plant selection. There is often shade for much of the day and grass may fail to thrive. Some garden components to restore or add include:

  • Garden or gravel extending out from the house battens, or from the concrete path along the house, which helps to alleviate mossy ground
  • A concrete path. Try to keep a garden here, at least along the base of the fence, as traditional gardens did not have extensive pavement areas.
  • Vine covered arbours between the fence and house, usually located at a side gate or start of a side path.
  • Vines trained up the fence and possibly over a top rail or trellis along the top.
  • A freestanding timber screen for privacy to side windows.

These narrow spaces are infrequently used or seen and receive low maintenance so the planting should be chosen accordingly:

  • Low plants at the base of the house to maintain access and for house cleaning (if there is no path).
  • Traditional plants include: Aspidistra elatior (aspidistra), Nephrolepsis sp. (sword fern), Nandina domestica (sacred bamboo), Zepheranthes sp, Adiantum sp. (maiden hair ferns), Sansevera sp (mother-in-law's tongue).
  • Other plants: Liriope muscari (liriope), Dietes grandiflora (day iris) and Dianella (Flax Lillies) varieties.

Overhead wires

Overhead wires limit the location for trees. There are many large shrubs of traditional character that could be used to provide the required shade and privacy.

gardens vine styles

The rear garden

Retain original or old elements

Before clearing the rear yard or old garden, record the locations of built elements and paths, their condition, and potential for retention and adaptation. Consider these in the design of any house extensions and in garden planning.

Paths, stone walls, edged garden beds, an old shade house, a clothes line or tank stand may all be restored or adapted for renewed use, even if only in part. These provide authenticity, links to the past and an interesting, close relationship between the house and garden.

Integrating new additions

If you are the owner of a historical house that has had no modern extensions or renovations and few are planned, the old garden layout is likely to be subject to changes. Contemporary use of the rear yard differs from that of 50 or more years ago when the house and garden were established. A new garage, water tank, covered outdoor living areas and a swimming pool are just some of the large scale elements requiring removal of lawns, gardens and trees. Around such modern additions, a contemporary but simple design approach is appropriate.

A new garden design will appear most in accord with the house if it has much of the overall structure, simplicity and plant character of traditional gardens of the house period. Consider the form, scale, proportions and character of the house and its relationship to the rear garden. For instance, Italianate rendered walls, decorative metal pool fences, high Victorian or Asian inspired reproduction gazebos and ornate fountains will not integrate happily with a timber and corrugated iron 19th or 20th century cottage.

Carports and garages

Carports or garages can be a major intrusion in an old garden. For information about placement and design of these structures in an older home, refer to Heritage advisory note – carports and garages.

gardens long unpruned

Value the existing mature trees and garden plants

A first important step in garden planning is a detailed review of the existing trees, shrubs and even the small plants. There are often potential garden treasures to be revealed. Trees can be carefully pruned and canopies thinned, to uplift them and allow more light, or to form a shaded space beneath for paving and a seat.

Boundary hedges overgrown and sparse near the ground can be pruned to grow bushy again, or you can refresh the soil and under-plant. Transplant shrubs, ferns, lilies, bulbs, succulents and roses from places needed for building extensions. Good garden soil should be saved.

These measures can help you keep the traditional structure and plant character that suits the house style, with the additional benefit of retaining a garden that appears appropriately established and is full of character and history.

Small garden structures

A fernery or bush house in the rear garden was fairly common throughout the early 20th century. In the Toowoomba region, larger gardens often had small conservatories or aviaries. The renovated garden can reflect a traditional character by including such a structure. A small garden retreat, garden storage with work table, or children's play house can serve contemporary uses, even though the structure is designed to reflect a traditional garden pavilion. For a pavilion or workspace, rather than using a prefabricated metal shed, ensure new buildings are of a design, scale and materials sympathetic to the era of the house. Integrate new structures by having vines scrambling over them and establishing a shrubbery setting.

An arbour or arch can be a delightful garden accent. Vines with scented flowers or climbing roses can shade a seat, define the passage between two garden areas, or make a pathway a garden's special feature.

Aviaries, pigeon lofts or dovecots were much more popular in early 20th century gardens than in the latter 20th century and nowadays. It would be appropriate to include an aviary-like structure with an alternative use as a seating arbour or vine covered structure.

The garage, usually a modest timber building as opposed to large 21st century structures, was commonly in the back yard until the 1970s. It may have contained a small home workshop. These old garages can still be seen in some Toowoomba region back yards and are a great historical garden asset.

A kitchen garden

Herbs and vegetable gardens are increasingly desired in the rear garden, just as they were from settlement times to mid last century. An appropriate productive area is one arranged within a simple rectangular form. It could include climbing frames and fruit trees. Compost bins should be located in a convenient yet not prominent location.

gardens timber pole clothes lines

The chook yard and roost

Chooks were frequently kept in the rear yard of early houses. In larger properties, a fenced area was often located at the rear of the yard utilising two of the boundary fences. A timber framed, mesh enclosed chook yard was often added as a lean-to on the storage shed, the tank stand, or garage. A simple structure and rectangular layout will be the most appropriate for a character garden.

The clothes line

The earlier clothes line system of long lines between timber poles is visually simple and fits into a renovated garden reflecting traditional style.

Water tanks

Through the first half of the 20th century water tanks were fairly common at the rear or side of the houses in towns. Historical documents or photos of your house, or even remnants of the tank stand, can indicate the original location. In regional towns, such as Pittsworth, the old tanks are sometimes still present. Sheds, rooms and laundries were sometimes built in under the tank stand. These historic features should be retained.

If the original location of a tank stand is no longer suitable, good garden design principles indicate an above ground tank be placed to one side of the property so views and northern/winter aspects are not blocked. A traditional tank in lined corrugated steel or stainless steel will suit a character house and not need to be screened from the garden or house. Consider a vine covered trellis or hedge planting to screen modern plastic and concrete tanks.

Tank water assists gardeners to establish new plants, a kitchen garden and fruit trees. A sizeable tank allows for some deep watering and watering the lawn.

A windmill and bore in the back yard

Bores are now rare in Toowoomba but are still seen in regional towns such as Pittsworth, sometimes with a windmill, for garden watering. The windmill is a distinct feature to be retained wherever possible, even if it is no longer used.

An appropriate garden with contemporary sensibilities

gardens lawn substitute

Water saving adaptations

All garden adaptations should present the appropriate scale and proportion of lawns and garden beds and much of the traditional character of plant forms, foliage textures and contrasts, while at the same time requiring less irrigation than was customary in the past. Soil preparation, mulching and maintenance practices play a major part in saving water. Refer to our water saving gardening information for some hints.

Plant substitutions are also a key factor. Local nurseries can suggest many suitable substitutes. Substitutes for some traditional, water loving shrubs include:

  • Dianella (Flax Lillies) or Dwarf Lomandra (Dwarf Ornamental Native Grasses) varieties
  • Callistemon (Bottlebrushes)
  • Grevillea (Grevilleas, Spider Flowers and Toothbrushes)
  • Leptospermum (Tea Trees) and Melaleuca (Tea Trees, Honey Myrtles and Paperbarks) compact shrub varieties
  • Westringia (Westringias) varieties instead of Lavandula (Lavender) or Rosemarinus Officinalis (Rosemary)
  • Dwarf grafted Eucalyptus (Dwarf Grafted Gum Trees) are also available as feature standards.

Nevertheless, many Australian native plants are not wholly appropriate for a reconstruction of an historical house garden.

Potentially invasive and poisonous plants

Some traditional garden plants are no longer acceptable. The character garden reconstruction may have to use substitutes. For example, a Pittosporum (Pittosporums or Cheesewoods) or Abelia (Abelias and Honeysuckles) instead of Ligustrum sp (Privet).

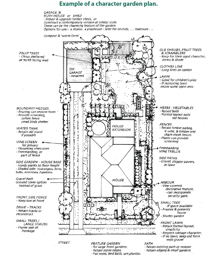
gardens example character garden plan

References
Broderick, Beris & Russell, Valerie, "Cottages A History of Cottage Life in Toowoomba", 1997.
Gardner, Patricia, "Toowoomba Plants: Natives of the Region suitable for Gardens Vol 1: Trees
and Shrubs", 2005.
Toowoomba Regional Council, "Planting Guide for Water Wise Gardeners", 4/2007
Acknowledgement
Brouwer, Catherine, Landscape Architects "Draft 5 Toowoomba and Region Gardens Heritage
Advisory Note", 23/8/2010.