Follow us
Youtube Facebook Twitter Instagram
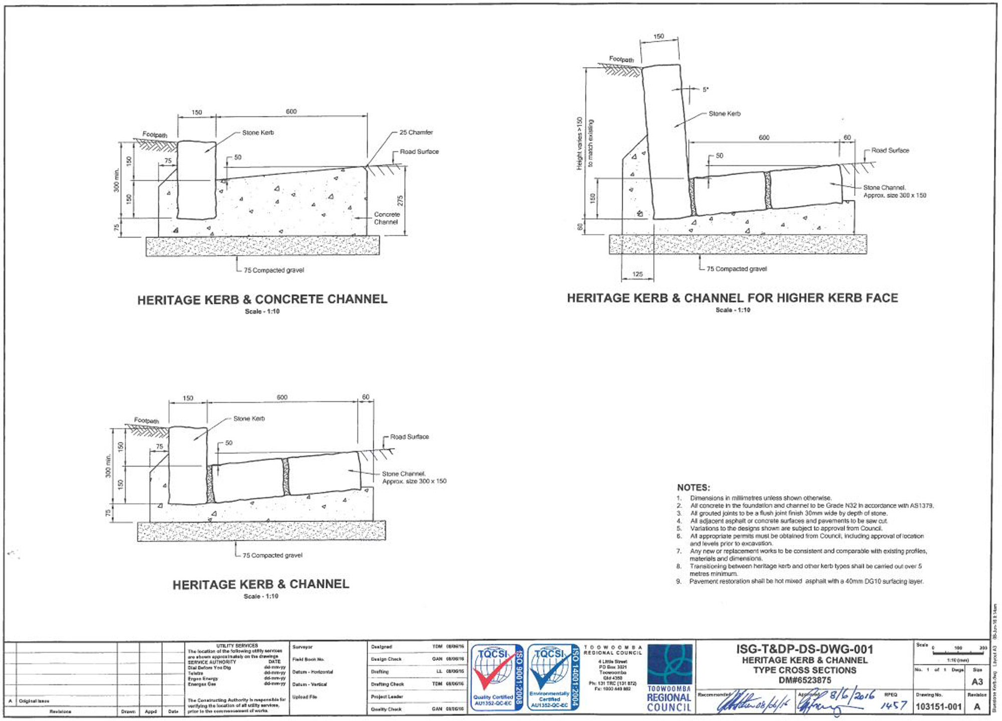
In areas of our regional towns where heritage kerb and channelling is made from bluestone, granite or other stone, we seek to preserve the identity and heritage character of these areas. A policy was developed in line with our Planning Scheme to define how this kerb and channelling should be retained, repaired and/or replaced.
Heritage kerb and channel diagram
2.38 Repair &/or Replacement of Heritage Kerbing &/or Channelling Policy
Please provide feedback to help us improve our site.
Processing your feedback...