Information 006

Landscape work forms an integral component of most new development by enhancing and protecting the character and function of the site and surrounding area. Council advocates an integrated design approach which considers the required landscape outcomes as part of the overall site design. This approach ensures that landscape works satisfy the provisions of the Planning Scheme, Planning Scheme Policies and the Landscape Code.

Landscape Approval Process

Proposed developments are reviewed under one of two statutory process/Acts depending on the date of the development application and/or approval. They are;

1. Landscape Approval relating to MCU/RAL applications lodged post July 3rd 2017 (Planning Act 2016)

Under the Planning Act there are two methods by which Council may assess and approve landscape proposals associated with development.

MCU or RAL Assessment 

A site analysis and landscape concept plan may be included for assessment in an application for material change of use or a subdivision which will create a new road.  Sufficiently detailed and properly prepared site analysis and landscape concept plans may be approved as part of the development permit.

Landscape Endorsement 

Where an application has been submitted without a Landscape Plan Council may impose a condition on the development approval requiring that a Landscape Plan submitted for an Endorsement Certificate. A submission for Landscape Plan Endorsement Certificate requires lodgement of a detailed landscape plans, complete Endorsement of Plans/Documents Application Form and payment of an assessment fee.

Process Summary

  • Applicant completes Development – Endorsement of Plans and Documents
  • Plans reviewed against the Planning Scheme and applicable Codes thereof
  • Landscaping Further Advice Notice issued to applicant if additional information is required
  • Upon satisfying review process and relevant conditions Landscape Endorsement Certificate is issued

2. Landscape Approval relating to MCU/RAL applications lodged prior July 3 pre July 2017 (Sustainable Planning Act 2009 related applications)  

Under SPA there are two methods by which Council may assess and approve landscape proposals associated with development.

MCU or RAL assessment

A Site Analysis and Landscape Concept Plan may be included for assessment in an application for material change of use or a subdivision which will create a new road.  Sufficiently detailed and properly prepared Site Analysis and Landscape Concept Plans may be approved as part of the Development Permit negating the need for an application for Landscape Compliance Assessment.  

Landscape compliance assessment

Where landscape proposals do not form part of an MCU/RAL development permit, Council may impose a condition requiring that a request for Compliance Certificate for Landscape be submitted prior to issue of a building permit or Operational Works Permit. An application for Landscape Compliance assessment requires lodgement of detailed landscape plans, an IDAS Form 32 and payment of an assessment fee.  To view information on the Compliance Assessment process, please go to the Department of State Development, Infrastructure and Planning website: http://www.dsdmip.qld.gov.au/economic-development-qld/buying-and-developing-land/development-applications-and-assessment/development-application-process.html

Process Summary

  • Applicant completes IDAS Form 32
  • Plans reviewed against the Planning Scheme and applicable Codes thereof
  • Action Notice issued to applicant if further information is required
  • Upon satisfying review process and relevant conditions Landscape Compliance Certificate and Approval issued

Overall outcomes for landscape work

The following provides a summary of Councils preferred outcomes for landscape. Specific performance outcomes are contained within the codes and policies of the Toowoomba Regional Council Planning Scheme 2012.

  1. Development is to provide landscaping that protects and enhances amenity and creates a sense of place consistent with the preferred local character.
  2. Landscape design is to protect and enhance the natural environmental values of the area from adverse impacts of development.
  3. Landscape design is suited to the local soil and climatic conditions and is robust to ensure the longevity and health for the life of the development.
  4. Landscape design optimises water and energy efficiency by designing for seasonal change, selection of sustainable materials and plant species suited to the local microclimate.

General requirements for all landscape plans

  • Title block - including:
    • title
    • property address
    • date
    • plan identification number
    • version and amendment table
    • name and contact details of designer
    • related MCU or RAL application/permit number
  • North block - all plans are to include a north point, and where possible be oriented with north to the top of page
  • Scale - all plans are to be drawn to scale and include a scale bar
  • Plan size - plans are to be legible when printed at A3 size
  • Format - PDF file

The following summary outlines the four forms of landscape plan which may be submitted.

Site analysis - landscape plan style 1

The basis of good design is the recognition of the character and context of the site. The site analysis illustrates the key characteristics of the site and its surrounding and demonstrates how the design responds to opportunities and constraints. The Site Analysis is to be prepared on a survey base showing the elements below and graphically identifying factors influencing the design proposal:

  • Property boundaries, fences and retaining walls
  • Existing buildings including on immediate neighbouring properties
  • Contours and drainage lines
  • Kerb line and all structures and trees within the verge
  • Existing trees including species, condition and approximate height
  • Major overhead or underground services
  • Images or description of streetscape and neighbourhood character

site analysis designsite analysis diagram

Landscape concept plan - landscape plan style 2

The Landscape Concept plan is to convey the primary functional and aesthetic elements of the landscape design. In particular the concept plan should illustrate hard and soft landscape treatments which will integrate with and enhance the surroundings and create an attractive and comfortable environment for occupants. In particular the concept plan must detail:

  • Existing features – Trees, fences, walls and other structures to be retained (including within the verge)
  • Proposed buildings – Wall and eave lines, window and door locations, access, parking and utility areas
  • Site services – Location of underground services, manholes, meters and fire hydrants
  • Finished surfaces – Dimensions and materials for all surfaces and statement of % permeable area
  • Fencing – location, height and colour
  • Retaining walls – location, height, materials and cross section where located in the frontage
  • Planting beds – Location, width, edge materials and typical cross section
  • Planting– Intended function, indicative species and height at maturity and typical planting detail
  • Turf– Extent of turf or grass seeding (only in areas greater than 1.5m wide)
  • Drainage– Location, finished levels and indicative species of vegetated storm water structures
  • Imagery – Streetscape elevation and images of intended landscape character

landscape concept plan

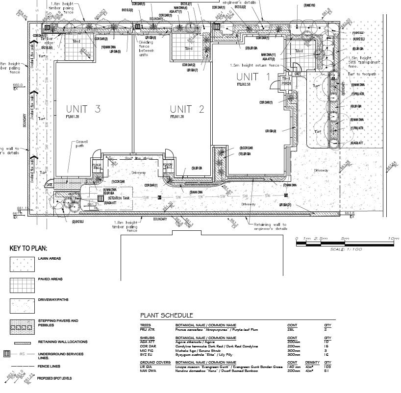
Detailed landscape plans - landscape plan style 3

Detailed Landscape plans are required for an application for Compliance Assessment if conditioned in a development approval. Plans must be prepared by a Landscape Architect or Landscape Designer with a recognised qualification. In addition to the general requirements applicable to all landscape plans, and information that would be contained in a Landscape Concept Plan, Detailed Landscape Plans must also include:

  • Tree protection– Detail of measures to protect existing trees (including street trees) from damage
  • Hardscape – Dimensions, levels, materials and finishes for all pavements, walls, fences and garden edging
  • Planting – Species, number and location of plants, plant schedule and watering points
  • Irrigation – Extent and type of proposed automatic irrigation
  • Details and Specifications – Written and graphic detail for all constructed landscape elements

sample detailed landscape plan

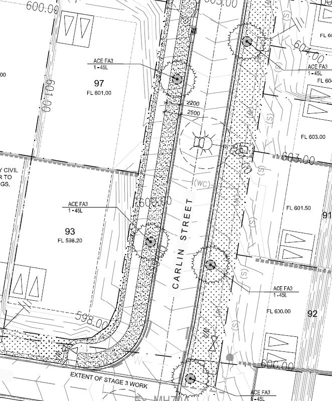
Street tree plans - landscape plan style 4

Street tree plans are to be prepared in accordance with PSP No. 2 Engineering Standards. Particular information to be provided includes:

  • Typical street cross section– Dimensioned to indicate tree clearance from underground services, footpaths and light poles
  • Planting detail – Minimum 2.0m wide by 1.0m depth planting space, soil preparation, fertiliser, mulch staking etc
  • Plant schedule – Species, number and location of plants – Street trees to be supplied in 45L litre containers
  • Maintenance schedule – Based on 12 months maintenance by the developer prior to acceptance of suitable standard street trees by Council

street tree plans                          set out detail street tree plans

plant schedule


Related documents